Вход/Регистрация
Полы в вашем доме
вернуться

Сбитнева Евгения

Шрифт:

С помощью малярной кисти с жесткой щетиной мастику наносят на огрунтованное основание, а также на обратную сторону плиток, причем полоса клеящего состава по ширине должна быть больше ширины укладываемого ряда. Плитки необходимо укладывать плотно друг к другу, так чтобы стыки между ними были практически незаметны. Сверху плитку припрессовывают валиком с резиновой шубкой (рис. 55).

Рис. 55. Укладка плиток ПВХ: а – нанесение мастики на обратную сторону плитки; б – укладка плитки на основание; в – припрессовка плитки валиком с резиновой шубкой.

В процессе работы могут потребоваться как целые, так и неполномерные плитки. Раскрой последних удобнее всего производить острым сапожным ножом по металлическому угольнику. В основном неполномерные плитки укладывают в рядах возле стен. Следят за тем, чтобы величина просвета между стеной и рядом не превышала 10 мм. Данное покрытие достаточно декоративно. Тем не менее оно имеет один недостаток: на поверхности плитки в теплое время года скапливается статическое электричество. Кроме того, в помещениях с таким покрытием ни в коем случае нельзя хранить емкости с огнеопасными веществами.

Облицовка пола плитками ПВХ диагональными рядами

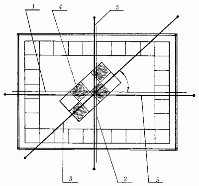
Работу по облицовке начинают с разметки поверхности. Определяют местонахождение продольной и поперечной осей комнаты и закрепляют вспомогательными причальными шнурами (рис. 56). Там, где шнуры пересекаются, под углом 45° натягивают основной причальный шнур и укладывают по нему ряд маячных плиток.

Рис. 56. Облицовка пола плитками ПВХ диагональными рядами: 1, 2 – продольная и поперечная оси помещения; 3 – основной причальный шнур; 4 – маячный ряд; 5 – вспомогательные причальные шнуры.

После того как маячный ряд будет выложен, приступают к облицовке плитками остальной поверхности. Способ укладки плиток такой же, как и при укладке плиток прямыми рядами. При этом полоса наносимой мастики должна быть значительно шире укладываемого ряда.

Для работы можно использовать мастики «Гумилакс», «Карболакс», «Бустилат-М» или «Биски».

После того как основная часть покрытия готова, можно приступать к настилу пристенных плиток. Для этого потребуются неполномерные плитки. Раскрой материала следует производить прямо на месте, стараясь, чтобы расстояние между стеной и пристенными рядами не превышало 10 мм.

Облицовка природным камнем

Очень красив пол, облицованный природным камнем. Из подобных материалов обычно выбирают гранит или мрамор, однако иногда встречаются мастера, умеющие выкладывать пол обычным камнем. Конечно, такое покрытие довольно тяжелое, а поэтому его можно применять только для одноэтажных домов или первых этажей многоэтажных.

Работу начинают с подбора необходимого материала. Для облицовки лучше всего подходят плиты, распиленные на прямоугольники и квадраты и отшлифованные с одной стороны.

Гранитные полы

Перед началом работы выкладывают плиты насухо, создавая рисунок. Это делается для того, чтобы в процессе работы не искать нужную плиту по всей комнате.

Процесс укладки гранитных плит довольно сложен, поэтому придется запастись терпением, только тогда можно получить великолепное покрытие.

На начальном этапе следует залить двухслойную бетонно-керамзитовую стяжку под будущий пол, причем второй слой заливают только после того, как схватится первый. Готовая стяжка должна иметь толщину около 150 мм.

Теперь можно приступить к укладке гранитных плит. Кстати, несмотря на то что камень – прочный материал, обращаться с ним в процессе работы и во время сортировки нужно очень осторожно: незамеченная трещина может впоследствии расшириться и свести на нет все усилия.

Гранитные плиты кладут встык, именно поэтому важно следить за параллельностью боковых граней стыкуемых плит.

Для большей прочности укладки под плиты делают специальную цементно-песчаную подушку в соотношении массовых частей 1: 3. Следует внимательно отнестись к выбору компонентов для подушки: цемент должен быть хорошего качества, однородный, при сжатии в кулак просачиваться через пальцы; песок – только чистый, промытый и просеянный, с мелкими зернами. Подготовленные компоненты смешивают с теплой водой до консистенции сметаны, тщательно перемешивают до однородной, без комочков, массы.

После этого укладывают раствор туда, где будет находиться первая гранитная плита. Обычно работа начинается с какого-либо угла помещения. Бордюрный стеновой камень должен быть расположен ниже уровня поверхности уложенной плиты. Гранитные плиты кладут впритык к стене, не оставляя зазоров.

Вторую плиту, как правило, укладывают в другом, соседнем углу помещения. Затем натягивают шнур по верхней плоскости плит и уже по этому шнуру укладывают первый ряд. Укладываемые на растворную подушку плиты сверху аккуратно простукивают киянкой, чтобы придать им горизонтальное положение (для большей уверенности можно использовать строительный уровень).

  • Читать дальше
  • 1
  • ...
  • 12
  • 13
  • 14
  • 15
  • 16
  • 17
  • 18
  • 19
  • 20
  • 21
  • 22
  • ...

Ебукер (ebooker) – онлайн-библиотека на русском языке. Книги доступны онлайн, без утомительной регистрации. Огромный выбор и удобный дизайн, позволяющий читать без проблем. Добавляйте сайт в закладки! Все произведения загружаются пользователями: если считаете, что ваши авторские права нарушены – используйте форму обратной связи.

Полезные ссылки

  • Моя полка

Контакты

  • chitat.ebooker@gmail.com

Подпишитесь на рассылку: