Вход/Регистрация
Техника и вооружение 2012 03
вернуться

Коллектив авторов

Шрифт:

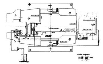
Схема системы смазки двигателя танка «Объект 430».

Забор атмосферного воздуха для питания двигателя производился через отведенный в общих жалюзи отсек, причем его конструкцией предусматривалась предварительная очистка воздуха в выходной инерционной решетке, приваренной к коробу. Отделенная в решетке пыль удалялась через щель под водяным радиатором за счет разряжения, имевшегося в воздушном коробе эжектора (коэффициент очистки инерционной решетки – 60%). Организованная таким образом воздушная трасса, кроме того, обеспечивала постоянный обмен воздуха в МТО с обдувом всей верхней части двигателя и его агрегатов.

Принятая конструкция системы охлаждения была приспособлена для подводного вождения танка и выполнена по принципу затопления изолированного отсека с охлаждением радиаторов проточной водой.

Система охлаждения обеспечивала возможность движения танка в условиях нормальной эксплуатации со средней скоростью 30 км/ч по твердой грунтовой дороге при температуре окружающего воздуха +30°С без перегрева двигателя (по ТТТ – до +50°С; в процессе испытаний не проверялась).

На полигонных образцах эффективность работы системы охлаждения двигателя была повышена с целью доведения предела средней скорости движения танка без перегрева двигателя при температуре окружающего воздуха до +40°С.

Система смазки двигателя – принудительная, с сухим картером, являлась общей и для системы гидросервоуправления и смазки трансмиссии. В системе использовались два бака емкостью 70 (левый) и 30 л (правый) и масляный центробежный фильтр-газоотделитель. Общая заправочная емкость баков – 70 л. Масло из левого бака через заборный фильтр поступала к двум нагнетающим шестеренчатым насосам (левый и правый, каждый производительностью 50 л/мин). Один из них (левый) имел две секции, одна из которых подавала масло через фетровый масляный фильтр на смазку двигателя, а вторая – на питание системы управления и смазки левой БКП. Второй насос использовался для питания системы управления и смазки правой БКП.

Из картеров БКП масло откачивалось двумя шестеренчатыми насосами в специальные полости картера двигателя, откуда вместе с маслом двигателя оно поступало в центробежный фильтр-газоотделитель. Далее масло направлялось через масляный радиатор в бак. При повышении сопротивления радиатора (в условиях низких температур окружающего воздуха) масло через редукционный клапан перепускалось непосредственно в бак. Газы, выделенные из масляной эмульсии, также отводились в бак. Для вращения ротора фильтра-газоотделителя использовалась часть масла из напорной магистрали двигателя. Прокачка масла перед пуском двигателя осуществлялась маслозакачивающим насосом МЗН-2. Промывка масляных баков без демонтажа из танка была невозможна.

В системе воздухоочистки двигателя использовался (кассетный или бескассетный) двухступенчатый воздухоочиститель типа ВТИ с эжекционным удалением пыли. В первой ступени устанавливались циклоны (36 шт.), смонтированные в пылесборник, служивший одновременно и крышкой воздухоочистителя; во второй – три кассеты с набивкой из промасленной проволочной канители. Примененная в воздухоочистителе конструкция циклонов комбинированного типа, заключавшая в себе два способа очистки воздуха (центробежный и инерционный), обеспечивала высокий коэффициент очистки – до 99,92% (пропуск пыли – не более 3 мг/м^3 ). Беспромывочный срок службы воздухоочистителя составлял 64 ч.

В состав трансмиссии танка входили две планетарные БКП, каждая из которых была конструктивно объединена с бортовым однорядным планетарным редуктором (i =6,0), и система гидросервоуправления и смазки. Планетарные БКП обеспечивали получение пяти передач переднего хода и одной передачи для движения назад. Диапазон передач составлял 8,14. При прямолинейном движении с помощью фрикционных устройств, работавших в масле, в каждой БКП одновременно включались одноименные передачи, а при повороте в БКП со стороны отстающего борта – передача на одну ступень ниже. Переключение передач в обоих случаях осуществлялось с помощью системы гидросервоуправления с максимальным рабочим давлением до 1,28 МПа (13 кгс/см^2 ). Усилие на рычагах управления поворотом не превышало 20 кгс (было установлено для исключения потери «чувства» машины), а усилие на педали горного тормоза доходило до 40 кгс. С помощью горного тормоза танк надежно удерживался на подъемах до +35°.

В системе подрессоривания машины применялась индивидуальная торсионная подвеска (диаметр торсиона – 58 мм, рабочая длина – 2080 мм) с телескопическими (поршневыми) гидроамортизаторами двухстороннего действия на ее крайних узлах. Она обеспечивала полный ход передних опорных катков 268 мм и остальных катков – 290 мм, при динамическом ходе 218 и 221 мм соответственно (у Т-54 полный ход катков составлял 184 мм при динамическом ходе 120 мм). Балансиры монтировались на игольчатых подшипниках на полой оси (она крепилась снаружи корпуса болтами к вваренному кронштейну) и стопорились от осевого смещения с помощью шариков. Торсионный вал проходил через ось и зубьями большой шлицованной головки соединялся с балансиром, а зубьями малой шлицованной головки – с зубчатым отверстием фланца оси противоположного узла подвески. Для ограничения хода балансиров передних и задних узлов подвески на корпусе машины устанавливались упругие упоры, состоявшие из двух резиновых буферов и бойка (удерживались в кронштейне упора гайкой). Балансиры остальных узлов подвески имели только жесткие упоры.

Воздухоочиститель двигателя танка «Объект 430».

Схема управления трансмиссией танка «Объект 430».

Узел торсионной подвески; справа – гидроамортизатор подвески танка «Объект 430».

БКП в сборе с бортовым редуктором и ведущим колесом танка «Объект 430».

  • Читать дальше
  • 1
  • ...
  • 36
  • 37
  • 38
  • 39
  • 40
  • 41
  • 42

Ебукер (ebooker) – онлайн-библиотека на русском языке. Книги доступны онлайн, без утомительной регистрации. Огромный выбор и удобный дизайн, позволяющий читать без проблем. Добавляйте сайт в закладки! Все произведения загружаются пользователями: если считаете, что ваши авторские права нарушены – используйте форму обратной связи.

Полезные ссылки

  • Моя полка

Контакты

  • chitat.ebooker@gmail.com

Подпишитесь на рассылку: