Шрифт:
Размеры выгула должны быть следующими: длина – 1,2–2 м, ширина – 0,8–0,9 м, высота – 0,4–0,5 м.
Каркас выгула изготавливают из металлических прутьев диаметром 8-10 мм и обтягивают сеткой. Для боковых стенок и потолка применяют сетку с размером ячеек 2,5x2,5 см, для пола – 1,5x4,5 см с диаметром проволоки от 1 до 4 мм. Некоторые нутриеводы каркас выгула делают сборным из деревянных рамок, используя бруски сечением 5x5 см.
Дверцу выгула размером 0,6x0,5 м располагают посередине боковой стенки. На сетчатом дне выгула, напротив дверцы, делают бетонный столик для кормления животных. Его толщина 5 см, ширина 0,5–0,6 м и длина 0,8–0,9 м. Края столика оборудуют бетонными бортиками высотой 7–8 см. При отсутствии бассейна поение нутрий осуществляют из различных поилок (вместимостью не менее 2 л), изготовленных из металла, керамики или иных прочных материалов.
Описанные выше клетки располагают на открытом воздухе (в районах с теплым климатом) или в закрытых помещениях (в районах с умеренным и холодным климатом). Если холодный период длится непродолжительное время, то внутри помещения устанавливают только домик, а выгул с бассейном – на улице. В теплую погоду задвижки на лазах оставляют открытыми, и нутрии гуляют по всей клетке, а в холодную лазы перекрывают, а домик утепляют соломой, древесной стружкой, мхом, сухими листьями и т. п.
В районах с умеренным и холодным климатом успешное содержание и разведение нутрий вне отапливаемых закрытых помещений невозможно. Причем в холодное время года в помещении должна поддерживаться температура не ниже 15 °C. Если животные круглый год содержатся в закрытых помещениях, то для них целесообразно использовать выгулы, предназначенные для определенных половозрастных групп. Что касается конструкции выгулов, то она прежде всего зависит от способа кормления животных.
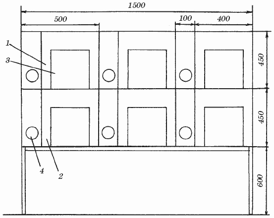
При кормлении нутрий сухими кормами зверькам вполне достаточно выгула с шириной по фронту 50, глубиной 70 и высотой 40–45 см. На 6 таких выгулов (3 – сверху и 3 – внизу) изготавливают один двухъярусный блок (рис. 17).
1 – выгул верхнего яруса; 2 – выгул нижнего яруса; 3 – кормушка; 4 – поилка
Передняя стенка блока представляет собой сетчатую дверцу с опрокидывающейся бункерной кормушкой (рис. 18). На этой же стенке крепят автопоилку.
1 – бункер; 2 – лоток; 3 – ограничительная планка; 4 – поддон; 5 – щека
Между соседними, а также верхними и нижними выгулами делают одинарные сетчатые перегородки. Самцов нутрий помещают только в верхних крайних ярусах, чтобы они не набрасывались на зверьков, содержащихся в нижних ярусах.
Выгулы для выращивания молодняка делают трехъярусными (рис. 19). Они имеют следующие размеры: ширина по фронту – 1,5 м, глубина – 0,7 м, высота – 0,3 м. Перегородки между ярусами изготавливают из сетки, а дверку размером 55x25 см располагают посередине выгула. Как правило, в верхних ярусах выращивают молодняк, предназначенный на забой, в нижних – племенных зверьков.
1 – выгул верхнего яруса; 2 – выгул среднего яруса; 3 – выгул нижнего яруса; 4 – кормушка; 5 – поилка; 6 – дверка
При кормлении нутрий влажными кормовыми смесями конструкция двух– и трехъярусных выгулов усложняется в связи с необходимостью установки между ярусами сплошных перекрытий или выдвижных поддонов. Кроме того, на передней стенке таких выгулов вместо бункерной кормушки устанавливают кормушку-лоток. При этом ширину выгула по фронту увеличивают с 0,5 до 0,7 м.
Помещения, где содержатся нутрии, необходимо ежедневно очищать от экскрементов и остатков корма, а также периодически проводить дезинфекцию.
Для дезинфекции применяют хлорную или белильную известь, а также едкий натр (каустическую соду), формалин, креолин и хлорамин.
Хлорную известь используют в виде 1–5 %-ного раствора для дезинфекции деревянных предметов, помещений и территорий участка. Каустическую соду применяют в виде горячего 2 %-ного раствора. Формалин используют в виде 2–4 %-ного раствора, креолин – в виде 3–5 %-ной горячей эмульсии, хлорамин растворяют в воде в соотношении 1: 10. После проведения дезинфекционных мероприятий помещение тщательно промывают теплой водой, а затем проветривают.
Кормление
Рациональное кормление – важнейшее условие для успешного разведения нутрий. При неправильном кормлении животные плохо растут, их резцы бледнеют, а шерсть теряет присущий ей блеск.
Из различных по составу кормов нутрии переваривают сухое вещество – на 70–80 %, протеин – на 65–75 %, жир – на 70–80 %, крахмал и сахар – на 80–90 %, сырую клетчатку – на 20–50 %.
Энергетическую питательность кормов для нутрий выражают в обменной энергии, равной их валовой (общей) энергии за вычетом потерь с мочой и калом. Количество же обменной энергии выражают в килокалориях (ккал) или килоджоулях (кДж); 1000 кДж = 1 МДж (мегаджоуль); 1 ккал = 4,19 кДж; 1 кДж = 0,239 ккал.
За 100 г энергетических кормовых единиц (ЭКЕ) для нутрий принято считать 250 ккал обменной энергии, что соответствует 1,05 МДж.
Потребность нутрий в обменной энергии равна (ккал в сутки на 1 кг веса): для подсосного молодняка – 200–250, отсаженного молодняка – 140–180, взрослых животных – 110–150.
Оптимальный уровень перевариваемого протеина в рационах нутрий равен приблизительно 11–12 % от сухого вещества при среднем коэффициенте перевариваемости протеина 78 %. Потребность животных в перевариваемом жире сравнительно мала: 4–5 % от сухого вещества.
