Вход/Регистрация
Водоснабжение, канализация и отопление загородного дома
вернуться

Никитко Иван

Шрифт:

Рис. 3.1.Зависимость напора от разницы температур в отопительной системе с естественной циркуляцией теплоносителя (мощность котла и температура подачи теплоносителя фиксированы)

Обратите внимание на рабочую точку при различных диаметрах труб (см. Рис. 3.1). Рабочая точка – это такой режим работы отопительного котла, при котором напор, обусловленный наличием разницы температур теплоносителя в подающей и обратной линиях (Т), становится равным гидравлическому сопротивлению котла. Чем ниже на рисунке располагается рабочая точка (то есть чем меньше гидравлическое сопротивление и чем больше диаметр труб), тем быстрее котел выходит на рабочий режим. До этого происходит перерасход топлива (за счет необходимости интенсивного прогрева всего теплоносителя в отопительной системе), и чем дольше отопительная система работает в «предварительном» режиме, тем более снижается срок службы отопительного котла. Так что использование при естественной циркуляции теплоносителя труб малого диаметра – это экономия на монтаже системы, но потеря денег в процессе эксплуатации за счет снижения срока службы котла и постоянного перерасхода топлива. А использование труб большого диаметра приводит к удорожанию всей отопительной системы почти в два раза.

Кроме того, при разводке отопительной схемы с естественной циркуляцией теплоносителя требуется со всей точностью соблюдать углы уклонов (то, что не слишком любят делать наши специалисты, и то, что требует наличия дорогостоящих материалов и оборудования).

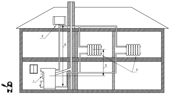
Одним из главных минусов системы с естественной циркуляцией теплоносителя является использование открытого расширительного бака (такой бак необходим, чтобы компенсировать тепловое расширение теплоносителя) (Рис. 3.2). Результатом являются насыщение теплоносителя кислородом и, как следствие, повышенная опасность коррозии для отопительных труб и радиаторов. Кроме того, с открытым расширительным баком в качестве теплоносителя не рекомендуется использовать антифризы, так как большинство из теплоносителей такого типа ядовито.

Еще один минус – открытый расширительный бак устанавливается в самой высокой точке отопительной системы (обычно его устанавливают на чердаке), а это означает определенное обустройство помещения для размещения бака плюс усиление перекрытий, то есть дополнительные расходы при монтаже.

Из расширительного бака открытого типа вода может выплескиваться на пол. Для того чтобы этого не происходило, можно установить бак, в котором предусмотрен слив излишков воды, но дополнительную емкость, в которую сливается лишняя вода, нужно регулярно проверять, чтобы она не переполнялась (обычно для этой цели ставят ведро, которое периодически опорожняется).

Рис. 3.2.

Гравитационная отопительная система с расширительным баком открытого типа:1 – отопительный котел; 2 – расширительный бак; 3 – отопительные приборы; 4 – высота расположения расширительного бака относительно котла; 5 – высота расположения отопительных приборов относительно котла

В системе с естественной циркуляцией теплоносителя может быть использован и закрытый расширительный бак (мембранный), но такое устройство требует дополнительного оборудования (например, необходимы предохранительный клапан, манометр, системы воздухоотвода и т. д.), поэтому для гравитационной системы мембранный бак используется редко.

Мембранный расширительный бак обычно имеет круглую или овальную форму, внутреннее пространство разделено герметичной гибкой мембраной. В одной части бачка находится жидкость (теплоноситель), в другой – воздух. Когда жидкость увеличивается в объеме, мембрана растягивается таким образом, что из воздушной части вытесняется часть воздуха, а жидкость занимает больший объем. Когда объем жидкости уменьшается, мембрана восстанавливает первоначальное положение.

В настоящее время системы с естественной циркуляцией теплоносителя используются в основном для небольших построек, предназначенных для нерегулярного проживания/посещения, к примеру, подобная система хороша для дачного дома. Если схема разводки простая, то такая система приобретает дополнительный бонус – для ее реализации (монтажа) не требуется специалист высокой квалификации, соответственно, устройство отопительной системы обходится дешевле, что очень существенно для небольших и недорогих построек.

К минусам системы с принудительной циркуляцией теплоносителя относится ее электрозависимость: если вдруг пропало электричество, то циркуляционный насос останавливается и теплоноситель прекращает движение по трубам. Зато имеется ряд плюсов, компенсирующих этот недостаток с лихвой:

систему с принудительной циркуляцией теплоносителя можно использовать в зданиях любой отапливаемой площади;

наличие циркуляционного насоса позволяет использовать трубы меньшего диаметра и в результате сэкономить на обустройстве отопительной системы;

в системах с принудительной циркуляцией теплоносителя используются только мембранные расширительные баки – закрытые и теплоноситель не насыщается столь вредным для отопительных труб и приборов кислородом, что продлевает безремонтный срок службы отопительной системы и удешевляет эксплуатацию;

возможна регулировка теплоотдачи радиаторов отопления с помощью термостатических вентилей.

Выбрав систему циркуляции теплоносителя, можно планировать отопительную систему дальше.

Особенно важен выбор отопительного котла – именно от него в большей части зависит стоимость эксплуатации отопительной системы загородного дома, то есть сумма, которую необходимо потратить на отопительный сезон, а также удобство пользования отопительной системой. При выборе отопительного котла нужно учитывать не только сиюминутные расходы, хотя, конечно, очень хочется сэкономить, но будущие эксплуатационные расходы важнее, и, сэкономив при приобретении котла, можно впоследствии потратить куда как большую сумму на его эксплуатацию.

  • Читать дальше
  • 1
  • ...
  • 25
  • 26
  • 27
  • 28
  • 29
  • 30
  • 31
  • 32
  • 33
  • 34
  • 35
  • ...

Ебукер (ebooker) – онлайн-библиотека на русском языке. Книги доступны онлайн, без утомительной регистрации. Огромный выбор и удобный дизайн, позволяющий читать без проблем. Добавляйте сайт в закладки! Все произведения загружаются пользователями: если считаете, что ваши авторские права нарушены – используйте форму обратной связи.

Полезные ссылки

  • Моя полка

Контакты

  • chitat.ebooker@gmail.com

Подпишитесь на рассылку: